ПРОЕКТЫ
ГАЛЕРЕЯ
РЕМОНТ
МЕБЛИРОВКА
УСЛУГИ И ЦЕНЫ
О СТУДИИ
КОНТАКТЫ
МАГАЗИН
СТУДИЯ
МАГАЗИН
+7 (905) 160 90 94
+7 (903) 893 61 51
Площадь дома
Услуга
Количество спален
218 м.кв.
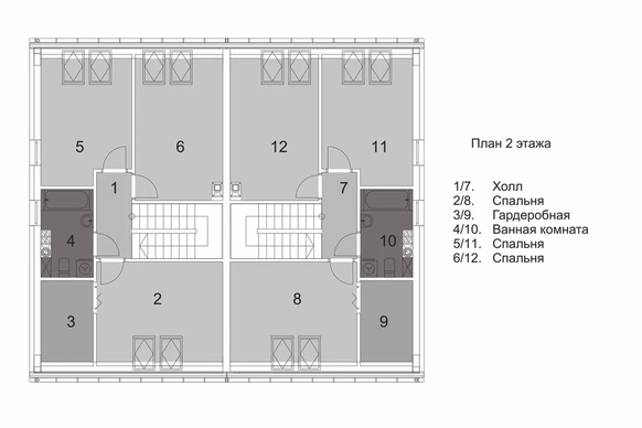
Проект интерьера и экстерьера дома 2ДЭ-218
4 спальни
+7 (905) 160-90-94
+7 (903) 893-61-51
Ежедневно: 9:00-20:00
didekia@mail.ru
Москва,
Нахимовский пр-т, 24
Подписывайтесь на нас:
Сайт не является публичной офертой и носит информационный характер
© 2014 СТУДИЯ ДИДЕКИЯ
О нас
Проекты
Ремонт
Все услуги
Меблировка
Галерея
Магазин
Контакты
СТУДИЯ ДИДЕКИЯ
Наверх